閉じる

ここから本文です。

更新日:2025年11月7日

No.380 新生町

【母屋】外観2

コンビニや繁華街に近い一軒家。母屋のほかに2棟の離れがついているほか、家庭菜園を楽しめる庭(約135坪)もあります。

基本情報
所在地 鹿屋市新生町
空き家形態 住宅
希望価格

売買:16,500,000円

構造 木造  平屋
家屋面積

延床面積1階:146.29㎡ (約44坪)

建築年次

平成14年  築23年

空き家になった年次:2025年頃

現況 即入居可
補修 入居者負担
トイレ 洋式|水洗
風呂 電気
敷地面積 1,521.54㎡ (約461坪)
家庭菜園 可  447㎡ (約135坪)
農地
駐車場
物置
水道 上水道
下水道 下水道
電気 引き込み済
ガス
ペット
特記事項 離れ:木造平屋、床面積112.27㎡、S52築、洋式水洗トイレ、上下水道、プロパンガス
母屋の家財は譲渡可能。不要な場合は所有者で撤去。旧宅の残置物は所有者で撤去。
※急傾斜地の崩壊危険区域指定
担当不動産

不動産名:雪松不動産

住所:鹿屋市吾平町麓4033-8

電話番号:0994-58-6174

生活環境(参考)
商店等 1.2km
医療機関 1.8km
小学校 1.6km
中学校 1.9km
市役所・総合支所 0.8km
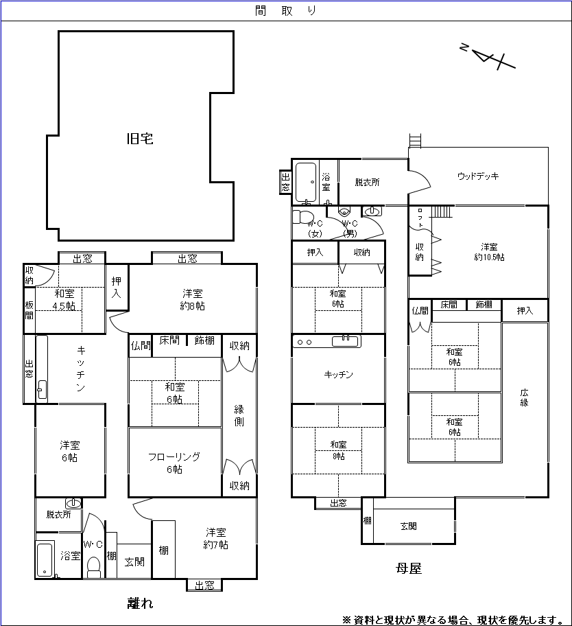
380間取り図
【母屋】外観
【母屋】玄関
【母屋】和室1
【母屋】リビング
【母屋】キッチン
【母屋】洋室1
【母屋】和室3
【母屋】洗面
【母屋】トイレ
【母屋】脱衣所
【母屋】浴室
【離れ】外観
【離れ】玄関
【離れ】フローリング
【離れ】洋室1
【離れ】洋室2
【離れ】和室
【離れ】洋室3
【離れ】キッチン
【離れ】トイレ・浴室
【旧宅】外観

より良いウェブサイトにするためにみなさまのご意見をお聞かせください

このページの情報は役に立ちましたか?

このページの情報は見つけやすかったですか?